Váš spolehlivý partner na trhu nemovitostí
Zpět na přehled

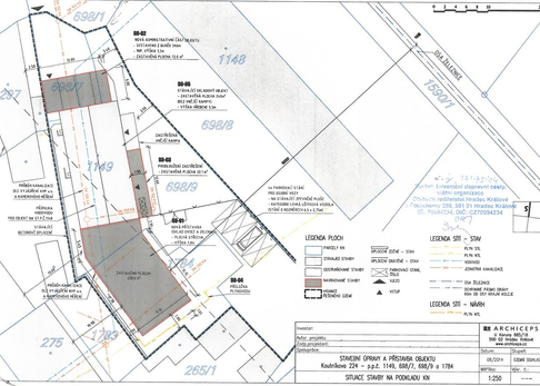
Prodej komerčního pozemku, 1.642 m2, Hradec Králové

Nabídka pozemku k prodeji, Hradec Králové

Exkluzivně nabízíme prodej pozemku pro komerční výstavbu na rohu ulic Koutníkova a Petra Jilemnického v Hradci Králové, části Plotiště. Pozemek o celkové výměře 1.642 m2 se nachází v uzavřeném a oploceném areálu. Součástí pozemku je rovněž podíl na přístupové asfaltové cestě. Příjezd možný jak osobním automobilem, tak také dodávkou či nákladním vozidlem. V současné době se na pozemku areálu nachází skladovací hala o celkové ploše 240 m2 a čtyři buňky, které jsou využívány jako kanceláře. Na pZobrazit víceSkrýt více

*
captcha